
Dom Monako
75 m2
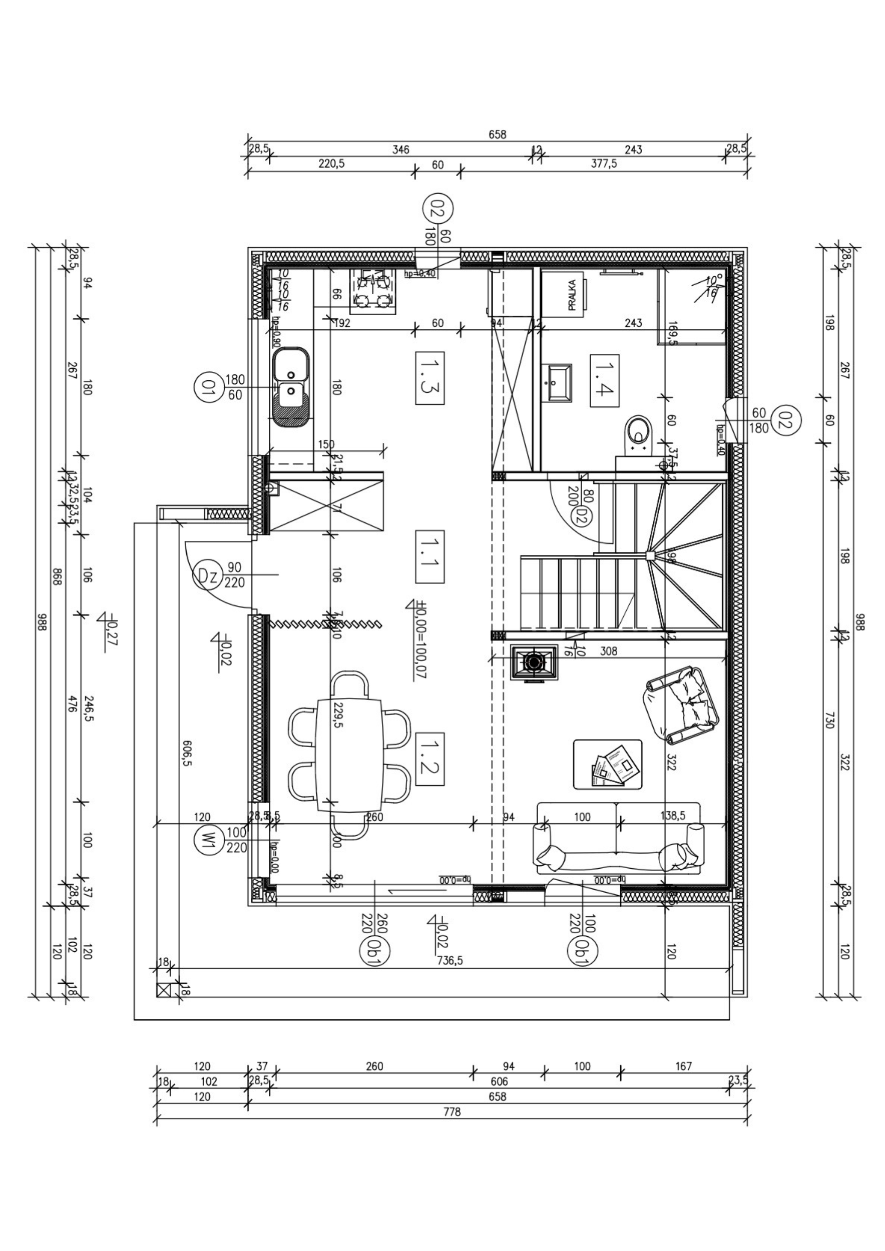
Nowoczesny, dwukondygnacyjny dom o prostej, geometrycznej bryle wykończony deska elewacyjną. Duże przeszklenia na parterze oraz efektowne, wysokie okna na poddaszu zapewniają dużo naturalnego światła i podkreślają współczesny charakter budynku. Front domu osłania zadaszony taras wsparty na smukłych słupach, tworząc przytulną przestrzeń wypoczynkową. Całość harmonijnie komponuje się z każdym otoczeniem, nadając domowi nowoczesny, minimalistyczny, a jednocześnie naturalny wygląd.
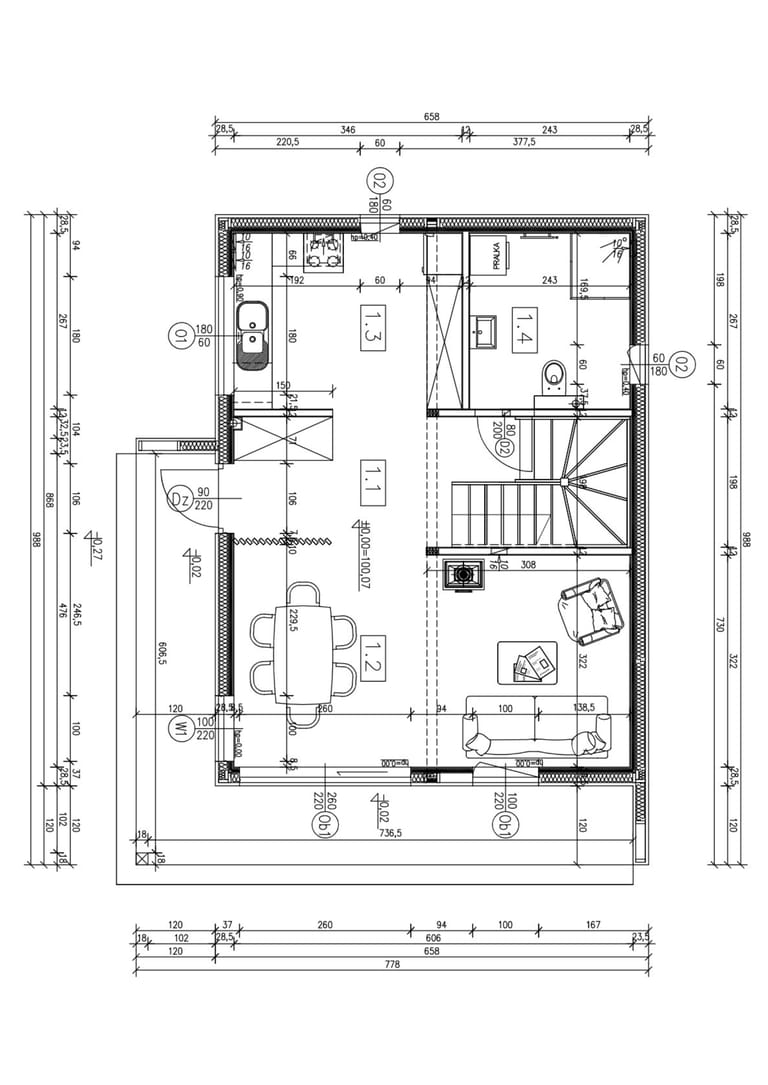
Projekt parteru:

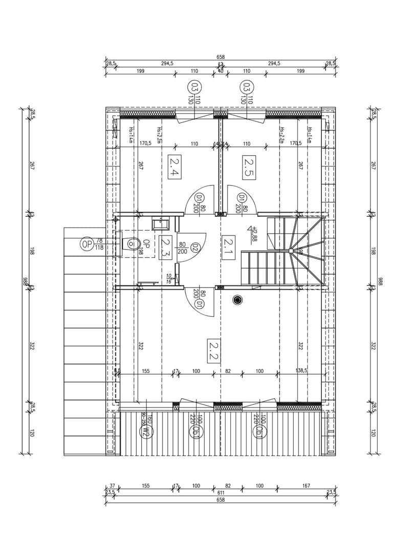
Projekt poddasza:

9,88m x 6,58m
75m2


