
GDYNIA
Dom
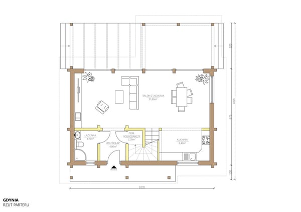
Gdynia to dom tak zaprojektowany, aby mieszkańcy czuli się maksymalnie swobodnie i komfortowo. Schody na piętro umieszczone są z boku, dzięki czemu nie zabierają przestrzeni pomieszczeń. Projekt przewiduje 3 sypialnie, 2 łazienki, wiatrołap, a nawet - saunę! Do tego ganek przed domem, na którym można spotykać się z przyjaciółmi lub czytać książkę, rozkoszując się urokami otoczenia.
Czego chcieć więcej?
Parter | pow. podłogi | użytkowa | |
1.1 | Pokój dzienny | 37,8 m2 | 37,8 m2 |
1.2 | Komunikacja | 2,3 m2 | 2,3 m2 |
1.3 | Kuchnia | 8,4 m2 | 8,4 m2 |
1.4 | Wiatrołap | 4,0 m2 | 4,0 m2 |
1.5 | Łazienka | 3,7 m2 | 3,7 m2 |
| Powierzchnia: | 56,2 m2 | 56,2 m2 |
Poddasze | pow. podłogi | użytkowa | |
2.1 | Sypialnia | 12,0 m2 | 7,4 m2 |
2.2 | Komunikacja | 7,8 m2 | 7,4 m2 |
2.3 | Sypialnia | 22,9 m2 | 14,3 m2 |
2.4 | Sypialnia | 15,3 m2 | 12,0 m2 |
2.5 | Sauna | 3,2 m2 | 1,7 m2 |
2.6 | Łazienka | 7,4 m2 | 6,5 m2 |
| Powierzchnia: | 68,6 m2 | 49,3 m2 |
Projekt można modyfikować – zmieniać wielkość pomieszczeń oraz powierzchnię użytkową domu.
Parter:

Piętro:

Pow. użytkowa: | 106,00 m2 |
Wymiar domu: | 10,95x10,05 m |


