
GOZO
Dom
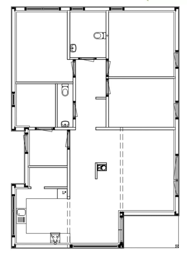
Marzysz o dużym domu parterowym z aneksem kuchennym, wydzieloną strefą jadalną z dużym przeszkleniem oraz dużym salonem...
to właśnie ten projekt spełnia te oczekiwania
Pamiętajcie, możemy wprowadzić zmiany w projekcie i jeszcze bardziej dopasować go do Waszych oczekiwań
Parter:

Pow. użytkowa: | 114,00 m2 |
Wymiar domu: | 11 m |
| + 10,4 m |


