
OSTRÓWEK
Dom
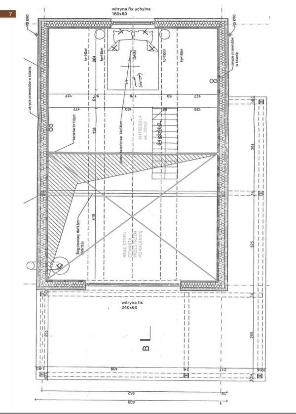
Dom parterowy z antresolą o powierzchni 63,7m2
Inwestor, któremu wybudowaliśmy ten dom nadał mu nazwę Ostrówek
Dzięki otwarciu przestrzeni po kalenicę (braku stropu) dom daje poczucie dużej przestrzeni i komfortu.
Pamiętajcie, możemy wprowadzić zmiany w projekcie i jeszcze bardziej dopasować go do Waszych oczekiwań
Piętro:

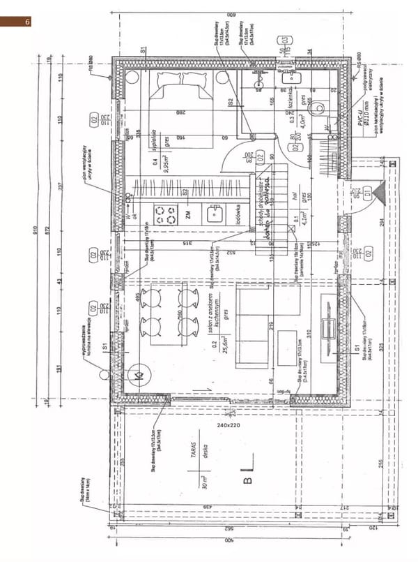
Parter:

Przekrój:

Pow. całkowita: | 63,00 m2 |
Pow. użytkowa: | 63,00 m2 |
Wymiar domu: | 9 m |
| + 8 m |


