
SAN MARINO
Dom
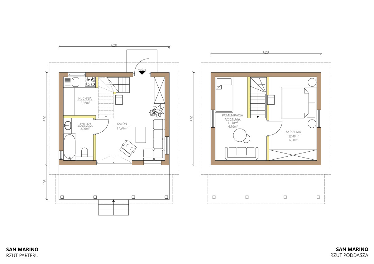
SAN MARINO to mały dom idealny dla pary, bądź jako dom ogrodowy. Na dole domu znajduje się duży salon oraz kuchnia i łazienka. Zaś na piętrze znajdują się dwie przestronne sypialnie. Wszystkie pomieszczenia są bardzo funkcjonalno rozmieszczone, co daje nam duże możliwości w przyszłym urządzaniu domu.
Dom wykończony jest drewnianymi elementami, które dodają uroku. Wpasowują się w estetykę, skutecznie przykuwając oko.
Projekt można modyfikować – zmieniać wielkość pomieszczeń oraz powierzchnię użytkową domu.
Parter i piętro:

Przekrój:

Pow. całkowita: | 40,00 m2 |
Pow. użytkowa: | 40,00 m2 |
Wymiar domu: | 5.20x6.20 m |
Wymiar tarasu: | 13,60 m |


