
SOPOT
Dom
Dom drewniany Sopot to niezwykły dom piętrowy o zgrabnej bryle. Wnętrze domu jest przestronne i jasne. Dzięki dużej powierzchni okien każdy pokój jest jasny i dobrze naświetlony. Duży salon jest doskonałym miejscem do odpoczynku i spędzenia miłych chwil w rodzinnej atmosferze.
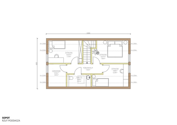
Dom drewniany Sopot, łączy w sobie tradycję z nowoczesnością. Mimo niewielkiej powierzchni gwarantuje sporo przestrzeni. Na parterze do dyspozycji znajduje się duży salon z oddzielną kuchnią. Na piętrze znajdują się cztery przytulne sypialnie.
Nie ma wątpliwości, że każdy znajdzie tutaj swój własny kąt.
Projekt można modyfikować – zmieniać wielkość pomieszczeń oraz powierzchnię użytkową domu.
Parter:

Piętro:

Pow. użytkowa: | 82,00 m2 |
Wymiar domu: | 10x6 m m |


