
WENECJA
Dom
Marzysz o dużym domu parterowym z aneksem kuchennym, wydzieloną strefą jadalną z dużym przeszkleniem oraz dużym salonem...
to właśnie ten projekt spełnia te oczekiwania
Pamiętajcie, możemy wprowadzić zmiany w projekcie i jeszcze bardziej dopasować go do Waszych oczekiwań
Projekt można modyfikować – zmieniać wielkość pomieszczeń oraz powierzchnię użytkową domu.
Parter:

Piętro:

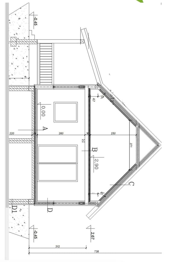
Przekrój:

Pow. całkowita: | 85,00 m2 |
Pow. użytkowa: | 66,00 m2 |


