
WILNO II
Dom
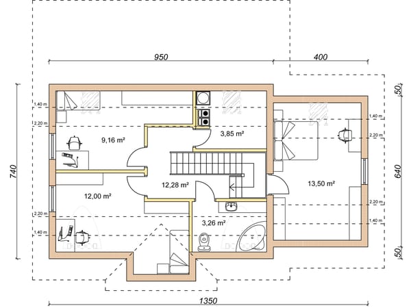
WILNO II to doskonały dom dla rodziny. Jest duży, więc z pewnością każdy znajdzie w nim swoje miejsce. 4 pokoje na piętrze pozwolą, aby każdy mógł cieszyć się swoją własną przestrzenią. Również na piętrze znajduje się wspólna łazienka.
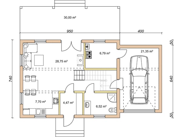
Na parterze mamy przestronny salon z aneksem kuchennym. To obecnie świetne rozwiązanie. Pozwala ono na to, aby domownicy zawsze ze sobą przebywali czas. Z salonu również jest wyjście na zewnątrz.
Projekt można modyfikować – zmieniać wielkość pomieszczeń oraz powierzchnię użytkową domu.
Parter:

Piętro:

Przekrój:

Pow. całkowita: | 130,00 m2 |
Pow. użytkowa: | 130,00 m2 |
Wymiar domu: | 13,5x7,4 m |
Wymiar garażu | 4x6,4 m |


