
Z544D
Dom
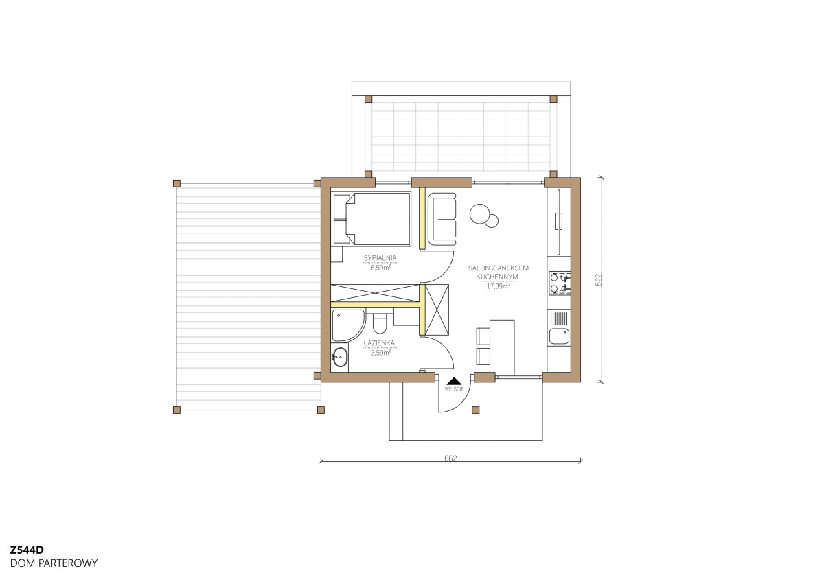
Dom Z544D o dwuspadowym dachu jest nie tylko tani w budowie, ale też energooszczędny w użytkowaniu. Sprawdzi się zarówno w wersji całorocznej jak i letniskowej.
Projekt można modyfikować – zmieniać wielkość pomieszczeń oraz powierzchnię użytkową domu.
Projekt pochodzi ze strony:
z500.pl
Parter:

Pow. użytkowa: | 35,00 m2 |
Wymiar domu: | 6,62x5,22 m |


